18 GRAMERCY PARK at 18 Gramercy Park South Building Details
Standing in stately silence at 18 Gramercy Park South, this 19-story Georgian Revival landmark marries historical elegance with modern cosmopolitan flair. Originally constructed in 1927 as a women's residence, the building was reborn in the early 2010s through a thoughtful conversion into only 16 full-floor condominium homes-each a masterful retreat crafted for those who command both privacy and prestige.
Under the visionary hand of Robert A.M. Stern Architects, the residences radiate a sense of serene opulence. Floorplans are open and expansive, with sweeping E-shaped layouts that draw natural light from four exposures. Interiors boast thick white-oak floors, marble-clad baths, and gourmet kitchens outfitted with Miele appliances. Many units include serene indoor-outdoor living options-whether private terraces, elevated views of Gramercy Park, or sky-high retreats with infinity pools and panoptic cityscapes.
Life at 18 Gramercy Park is lived luxuriously, yet privately-only 16 owners, shared access to Manhattan's most exclusive park, and thoughtfully curated amenities that rival those of a boutique hotel. It's an address where Georgian grace and modern comfort converge, offering timeless city living in one of New York's most cherished enclaves.
Under the visionary hand of Robert A.M. Stern Architects, the residences radiate a sense of serene opulence. Floorplans are open and expansive, with sweeping E-shaped layouts that draw natural light from four exposures. Interiors boast thick white-oak floors, marble-clad baths, and gourmet kitchens outfitted with Miele appliances. Many units include serene indoor-outdoor living options-whether private terraces, elevated views of Gramercy Park, or sky-high retreats with infinity pools and panoptic cityscapes.
Life at 18 Gramercy Park is lived luxuriously, yet privately-only 16 owners, shared access to Manhattan's most exclusive park, and thoughtfully curated amenities that rival those of a boutique hotel. It's an address where Georgian grace and modern comfort converge, offering timeless city living in one of New York's most cherished enclaves.
Are You an Owner Wanting to Rent or Sell Your Apartment?
18 GRAMERCY PARK Building Amenities
- Common roof deck
- Full-time doorman
- Live-in superintendent
- On-site laundry
- Pets - Cats ok
- Pets - Dogs ok
- Concierge
- Elevator
- Gym/Fitness
- Pre-War
- Storage
Active Listings & Units
18 GRAMERCY PARK Residences
Recent Activity at 18 GRAMERCY PARK
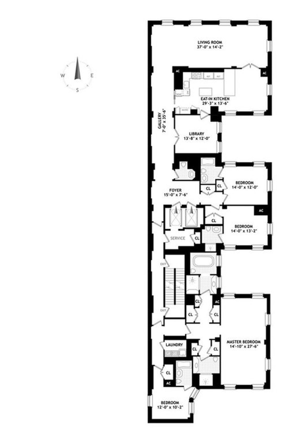
Apartment Floor Plans
Building Facts for 18 Gramercy Park South, New York 10003
- Available Sales Listings: 0
- Street Address: 18 Gramercy Park South, New York, NY 10003
- Property Type: Condominium
- Elevator Building
- Doorman: Full-time doorman
- Neighborhood: Gramercy Park / Manhattan
- Building Name: 18 GRAMERCY PARK
- Available Rental Listings: Please Inquire
- Year Built: 1927
- Floors: 19
- Developer: Zeckendorf Development alongside Israeli investor Eyal Ofer
- Architect: Robert A.M. Stern Architects
-
Near Subway Lines:
Other Similar Buildings in NYC

12 EAST 12 STREET
10 East 12 Street, New York, NY 10003
Condominium in Greenwich Village

12 East 13th Street, New York, NY 10003
Condominium in Union Square

14 West 14 Street, New York, NY 10011
Condominium in Greenwich Village

121 West 20 Street, New York, NY 10011
Condominium in Chelsea

Citizen
124 West 23 Street, New York, NY 10011
Condominium in Chelsea

50 Madison Avenue, New York, NY 10010
Condominium in NoMad

21 East 26 Street, New York, NY 10010
Condominium in Flatiron

323 Park Avenue South, New York, NY 10010
Condominium in Gramercy Park
Map Location of 18 GRAMERCY PARK and nearby points of interest
Coming Soon
Alternate Addresses for 18 GRAMERCY PARK in NYC
- 124 EAST 20 STREET
- 85 IRVING PLACE
- 18 GRAMERCY PARK SOUTH
Keep informed about price changes, new listings, sold properties, and other activity in 18 GRAMERCY PARK by providing your email below.
You have been subscribed to receive the following updates on 18 GRAMERCY PARK
Fill out the form below and one of our building specialists will reach out to you shortly.