45 WARREN STREET at 45 Warren Street Building Details
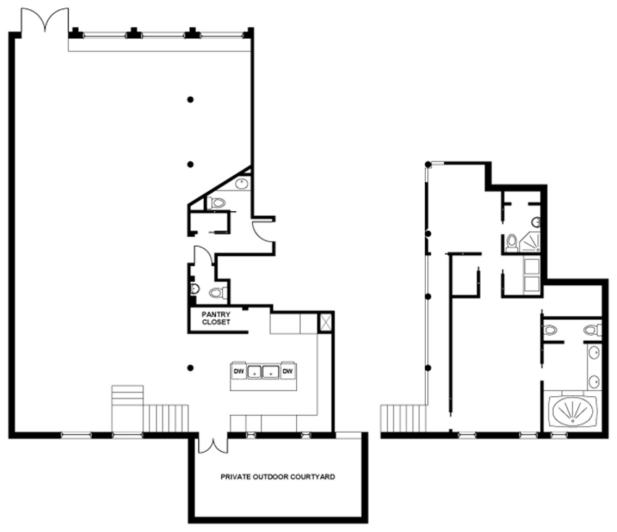
45 Warren Street, nestled in Tribeca, New York, NY 10007, epitomizes luxury living with its chic minimalist style and exclusive five-unit setup. The building's main floor is a marvel of design, boasting a 50-foot width and 22-foot height, bathed in natural light from grand skylights. This expansive living area, complete with a wood-burning fireplace and six large windows, is perfect for relaxation and entertainment. The adjacent formal dining room, under its own skylight, can host up to twenty guests, complemented by a well-equipped chef's kitchen and a convenient service kitchen.
The residence features two spacious bedrooms on the main floor, each with an ensuite bathroom, and a powder room for guests. Above, a dramatic balcony offers a unique vantage point over the main floor. This level houses a grand master suite, complete with a master bath, dressing room, and a vast south-facing terrace. The third level unveils a versatile studio space, graced with a skylight and a wraparound terrace, offering panoramic views.
Situated in a prime Tribeca location, 45 Warren Street is surrounded by green spaces like Washington Market Park, Hudson River, Battery Park City Esplanade, and City Hall Park. The neighborhood is a hub for shopping, dining, and entertainment, with Tribeca Green Market, Whole Foods, Target, Westfield World Trade, The Oculus, Brookfield Place, and the Seaport District all nearby. Transportation is a breeze with access to multiple subway lines, buses, and CitiBikes.
45 Warren Street is a testament to luxurious, convenient living in the heart of Tribeca, offering spacious apartments and an enviable lifestyle.
45 Warren Street, nestled in Tribeca, New York, NY 10007, epitomizes luxury living with its chic minimalist style and exclusive five-unit setup. The building's main floor is a marvel of design, boasting a 50-foot width and 22-foot height, bathed in natural light from grand skylights. This expansive living area, complete with a wood-burning fireplace and six large windows, is perfect for relaxation and entertainment. The adjacent formal dining room, under its own skylight, can host up to twenty guests, complemented by a well-equipped chef's kitchen and a convenient service kitchen.
The residence features two spacious bedrooms on the main floor, each with an ensuite bathroom, and a powder room for guests. Above, a dramatic balcony offers a unique vantage point over the main floor. This level houses a grand master suite, complete with a master bath, dressing room, and a vast south-facing terrace. The third level unveils a versatile studio space, graced with a skylight and a wraparound terrace, offering panoramic views.
Situated in a prime Tribeca location, 45 Warren Street is surrounded by green spaces like Washington Market Park, Hudson River, Battery Park City Esplanade, and City Hall Park. The neighborhood is a hub for shopping, dining, and entertainment, with Tribeca Green Market, Whole Foods, Target, Westfield World Trade, The Oculus, Brookfield Place, and the Seaport District all nearby. Transportation is a breeze with access to multiple subway lines, buses, and CitiBikes.
45 Warren Street is a testament to luxurious, convenient living in the heart of Tribeca, offering spacious apartments and an enviable lifestyle.
45 WARREN STREET Building Amenities
- No pets
- Elevator
Active Listings & Units
45 WARREN STREET Residences
Recent Activity at 45 WARREN STREET
Apartment Floor Plans
Building Facts for 45 Warren Street, New York 10007
- Available Sales Listings: 2
- Street Address: 45 Warren Street, New York, NY 10007
- Property Type: Condominium
- Elevator Building
- Neighborhood: Tribeca / Manhattan
- Building Name: 45 WARREN STREET
- Available Rental Listings: Please Inquire
- Total Apartments: 5
- Floors: 5
-
Near Subway Lines:
Other Similar Buildings in NYC

49 Murray Street, New York, NY 10007
Condominium in Tribeca

41 Warren Street, New York, NY 10007
Condominium in Tribeca

53 Murray Street, New York, NY 10007
Condominium in Tribeca

53 Warren Street, New York, NY 10007
Condominium in Tribeca

55 Warren Street, New York, NY 10007
Condominium in Tribeca

Warren Lofts
37 Warren Street, New York, NY 10007
Condominium in Tribeca

Keystone Building
38 Warren Street, New York, NY 10007
Condominium in Tribeca

54 Warren Street, New York, NY 10007
Condominium in Tribeca
Map Location of 45 WARREN STREET and nearby points of interest
Coming Soon
Alternate Addresses for 45 WARREN STREET in NYC
- 45 WARREN STREET
- 47 WARREN STREET
You have been subscribed to receive the following updates on 45 WARREN STREET