Welcome to 518 EAST 11 STREET, a serene pre-war coop building located in the heart of the East Village in New York City. This building offers a peaceful and tranquil environment, perfect for those looking for a comfortable and convenient place to call home.
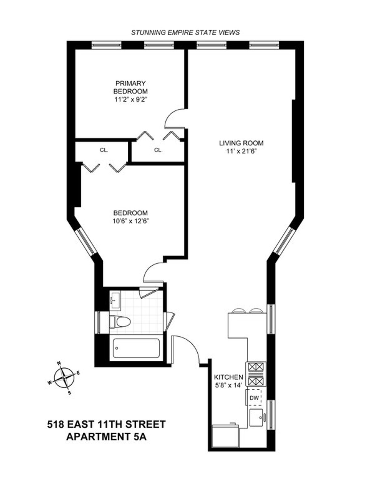
The building features a variety of spacious and well-designed apartments, including 2-bedroom layouts. Each apartment is characterized by loft-like and airy spaces, with more than 9-foot ceilings and oversized windows providing stunning Northern exposures and views of the Empire State building and beyond.
Hardwood flooring can be found throughout the apartments, along with thru-wall A/C for optimal comfort, and windows in both the kitchen and bathroom for ventilation. Residents also enjoy the exclusive perk of having a private washer and dryer available on each floor of the building.
The open-concept chef's kitchen in each apartment is windowed and features high-end appliances such as a fully vented Viking stove, Fisher-Paykel refrigerator, and double-drawer dishwasher. The breakfast bar is perfect for dining and food prep, while maximizing countertop space.
Both of the king-sized bedrooms in each apartment offer large custom closets and great proportions, providing ample storage space. The building itself has recently renovated hallways, ensuring a modern and inviting atmosphere for residents.
Additional building amenities include a live-in super for convenient assistance, an updated video intercom/security system for added safety, and bike storage for residents who prefer cycling. A garbage chute is also present in the building, a rare feature for buildings of similar nature.
This pet-friendly building allows unlimited subletting after 1 year of residency with board approval, offering flexibility for residents. However, parents buying for children are not allowed.
Within the vibrant East Village neighborhood, residents of 518 EAST 11 STREET have access to a wide range of amenities and attractions. Tompkins Square Park is just one block away, providing a green space for relaxation and recreation.
The building is conveniently located near public transportation options, with the L train and Union Square subways in close proximity. Residents also have easy access to grocery stores such as Whole Foods and Trader Joe's, as well as numerous restaurants, nightlife venues, and boutiques in the neighborhood.
Don't miss out on the opportunity to make 518 EAST 11 STREET your new home in the East Village. Experience the tranquility, convenience, and comfort of this well-established coop building.
Are You an Owner Wanting to Rent or Sell Your Apartment?
- On-site laundry
- Elevator
- Pre-War
- Available Sales Listings: 2
- Street Address: 518 East 11th Street, New York, NY 10009
- Property Type: Cooperative
- Elevator Building
- Neighborhood: East Village / Manhattan
- Building Name: 518 EAST 11 STREET
- Available Rental Listings: Please Inquire
- Year Built: 1900
- Total Apartments: 13
- Floors: 6
-
Near Subway Lines:








- 518 EAST 11 STREET