Four Seasons Private Residences at 30 Park Place Building Details
Nestled in the heart of Tribeca, the Four Seasons Private Residences at 30 Park Place offer an unparalleled luxury living experience. Developed by Silverstein Properties, Inc. and masterfully designed by Robert A.M. Stern Architects, this iconic residence is synonymous with sophistication and style. The residences, starting from the 39th floor, boast breathtaking panoramic views of the Hudson River, Manhattan skyline, and beyond.
The epitome of 5-star living, residents have access to the legendary Four Seasons Hotels and Resorts services, ensuring a seamless blend of luxury living and world-class hospitality. A dedicated 24-hour doorman and concierge services, a spa and salon, a 75' swimming pool, and a host of amenities exemplify the commitment to a refined lifestyle.
The residences feature meticulously crafted interiors with solid oak wood flooring, herringbone patterns, Bilotta rift-cut oak kitchen cabinetry, and top-of-the-line Gaggenau appliances. Marble bathrooms with custom-designed vanities by Robert A.M. Stern add an extra layer of elegance.
The 38th floor is exclusively devoted to private residential amenities, including a fitness center and yoga studio, private dining room, conservatory, and lounge with access to loggias. A Roto-designed kid's playroom and a screening room further enhance the living experience.
Situated in southern Tribeca, residents enjoy proximity to Michelin star restaurants, world-class shopping at Brookfield Place, fine dining at renowned establishments, and cultural events at the Perelman Arts Center. Outdoor enthusiasts can explore the Hudson River Park, Washington Market Park, and other recreational options. Convenient transportation, including nearby subway stations, ensures easy access to the city's attractions.
The epitome of 5-star living, residents have access to the legendary Four Seasons Hotels and Resorts services, ensuring a seamless blend of luxury living and world-class hospitality. A dedicated 24-hour doorman and concierge services, a spa and salon, a 75' swimming pool, and a host of amenities exemplify the commitment to a refined lifestyle.
The residences feature meticulously crafted interiors with solid oak wood flooring, herringbone patterns, Bilotta rift-cut oak kitchen cabinetry, and top-of-the-line Gaggenau appliances. Marble bathrooms with custom-designed vanities by Robert A.M. Stern add an extra layer of elegance.
The 38th floor is exclusively devoted to private residential amenities, including a fitness center and yoga studio, private dining room, conservatory, and lounge with access to loggias. A Roto-designed kid's playroom and a screening room further enhance the living experience.
Situated in southern Tribeca, residents enjoy proximity to Michelin star restaurants, world-class shopping at Brookfield Place, fine dining at renowned establishments, and cultural events at the Perelman Arts Center. Outdoor enthusiasts can explore the Hudson River Park, Washington Market Park, and other recreational options. Convenient transportation, including nearby subway stations, ensures easy access to the city's attractions.
Four Seasons Private Residences Building Amenities
- Common parking/Garage
- Full-time doorman
- Media Room
- On-site laundry
- Concierge
- Elevator
- Gym/Fitness
- Playroom
- Pool
Active Listings & Units
Four Seasons Private Residences Residences
Recent Activity at Four Seasons Private Residences
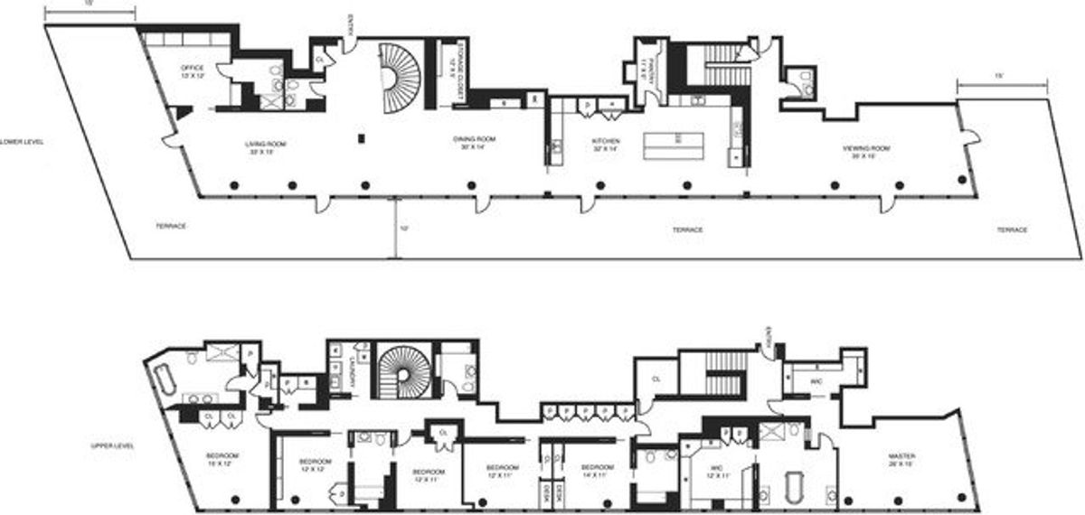
Apartment Floor Plans
Building Facts for 30 Park Place, New York 10007
- Available Sales Listings: 10
- Street Address: 30 Park Place, New York, NY 10007
- Property Type: Condominium
- Elevator Building
- Doorman: Full-time doorman
- Neighborhood: Tribeca / Manhattan
- Building Name: Four Seasons Private Residences
- Available Rental Listings: Please Inquire
- Year Built: 2008
- Total Apartments: 157
- Floors: 70
-
Near Subway Lines:
Other Similar Buildings in NYC

100 Barclay
140 West Street, New York, NY 10007
Condominium in Tribeca

200 Chambers Street
200 Chambers Street, New York, NY 10007
Condominium in Tribeca

56 Leonard - Jenga Building
56 Leonard Street, New York, NY 10013
Condominium in Tribeca

111 Murray Street
111 Murray Street, New York, NY 10007
Condominium in Tribeca

91 Leonard
91 Leonard Street, New York, NY 10013
Condominium in Tribeca

130 William
130 William Street, New York, NY 10038
Condominium in Financial District

101 Warren
101 Warren Street, New York, NY 10007
Condominium in Tribeca
Map Location of Four Seasons Private Residences and nearby points of interest
Coming Soon
Alternate Addresses for Four Seasons Private Residences in NYC
- 95 CHURCH STREET
- 97 CHURCH STREET
- 99 CHURCH STREET
- 101 CHURCH STREET
- 103 CHURCH STREET
- 105 CHURCH STREET
- 26 PARK PLACE
- 28 PARK PLACE
- 30 PARK PLACE
- 32 PARK PLACE
- 34 PARK PLACE
- 36 PARK PLACE
- 38 PARK PLACE
- 40 PARK PLACE
- 42 PARK PLACE
- 23 BARCLAY STREET
- 25 BARCLAY STREET
- 27 BARCLAY STREET
- 29 BARCLAY STREET
- 31 BARCLAY STREET
- 33 BARCLAY STREET
- 35 BARCLAY STREET
- 37 BARCLAY STREET
- 39 BARCLAY STREET
- 41 BARCLAY STREET
You have been subscribed to receive the following updates on Four Seasons Private Residences