The Epic at 125 West 31St Street Building Details
Situated in the heart of Manhattan, 125 West 31st Street is home to The Epic, a distinguished residential skyscraper that seamlessly blends modern luxury with sustainable living. Completed in 2007, this 58-story building rises to a height of 615 feet, offering residents an unparalleled living experience in one of New York City's most vibrant neighborhoods.
Upon entering The Epic, residents are greeted by an elegant lobby that sets the tone for the sophistication within. The building offers a 24-hour concierge service, ensuring both security and convenience for its residents. The residences, ranging from studios to two-bedroom apartments, feature spacious layouts, high ceilings, and expansive windows that provide breathtaking views of the Manhattan skyline. Each unit is meticulously designed with modern finishes, including gourmet kitchens equipped with high-end appliances, sleek countertops, and custom cabinetry, catering to those seeking both comfort and style.
One of The Epic's most notable features is its commitment to sustainability, having achieved LEED Gold certification. This dedication to eco-friendly living is complemented by a comprehensive suite of amenities designed to enhance the quality of life for its residents. A state-of-the-art fitness center caters to health enthusiasts, while a residents' lounge provides a perfect setting for socializing or unwinding after a long day. For those seeking leisure and entertainment, The Epic offers a private screening room, ideal for movie nights or watching the big game. Additionally, a landscaped outdoor terrace provides a serene escape from the bustling city, offering panoramic views and comfortable seating areas for relaxation or social gatherings.
Additional amenities include a billiards room, conference center, and bicycle storage, accommodating the diverse needs of the building's occupants. The Epic also offers on-site parking, a valuable asset in Manhattan, ensuring residents have convenient access to their vehicles.
The building's prime location places residents within close proximity to some of New York City's most iconic landmarks, including Madison Square Garden, the Empire State Building, and the High Line. With easy access to multiple subway lines, residents can effortlessly navigate the city, enjoying the vibrant culture, dining, and shopping that Manhattan has to offer.
In summary, 125 West 31st Street, The Epic, stands as a testament to refined urban living, offering residents a harmonious blend of luxury, sustainability, and unparalleled city views. Its thoughtful design and extensive amenities make it one of Manhattan's most sought-after residential addresses, embodying the essence of sophisticated New York living.
Upon entering The Epic, residents are greeted by an elegant lobby that sets the tone for the sophistication within. The building offers a 24-hour concierge service, ensuring both security and convenience for its residents. The residences, ranging from studios to two-bedroom apartments, feature spacious layouts, high ceilings, and expansive windows that provide breathtaking views of the Manhattan skyline. Each unit is meticulously designed with modern finishes, including gourmet kitchens equipped with high-end appliances, sleek countertops, and custom cabinetry, catering to those seeking both comfort and style.
One of The Epic's most notable features is its commitment to sustainability, having achieved LEED Gold certification. This dedication to eco-friendly living is complemented by a comprehensive suite of amenities designed to enhance the quality of life for its residents. A state-of-the-art fitness center caters to health enthusiasts, while a residents' lounge provides a perfect setting for socializing or unwinding after a long day. For those seeking leisure and entertainment, The Epic offers a private screening room, ideal for movie nights or watching the big game. Additionally, a landscaped outdoor terrace provides a serene escape from the bustling city, offering panoramic views and comfortable seating areas for relaxation or social gatherings.
Additional amenities include a billiards room, conference center, and bicycle storage, accommodating the diverse needs of the building's occupants. The Epic also offers on-site parking, a valuable asset in Manhattan, ensuring residents have convenient access to their vehicles.
The building's prime location places residents within close proximity to some of New York City's most iconic landmarks, including Madison Square Garden, the Empire State Building, and the High Line. With easy access to multiple subway lines, residents can effortlessly navigate the city, enjoying the vibrant culture, dining, and shopping that Manhattan has to offer.
In summary, 125 West 31st Street, The Epic, stands as a testament to refined urban living, offering residents a harmonious blend of luxury, sustainability, and unparalleled city views. Its thoughtful design and extensive amenities make it one of Manhattan's most sought-after residential addresses, embodying the essence of sophisticated New York living.
The Epic Building Amenities
- Bike room
- Common Outdoor Space
- Full-time doorman
- Lounge room
- New construction
- On-site laundry
- Parking Available
- Pets - Cats ok
- Pets - Dogs ok
- Concierge
- Elevator
- Gym/Fitness
- Storage
Active Listings & Units
The Epic Residences
Recent Activity at The Epic
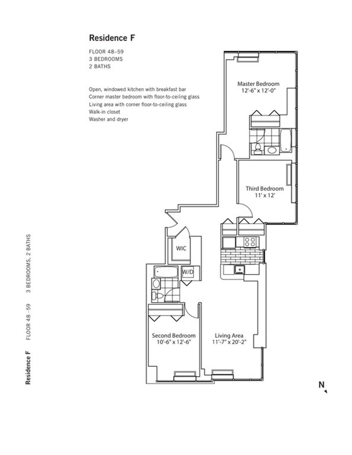
Apartment Floor Plans
Building Facts for 125 West 31St Street, New York 10001
- Available Sales Listings: 0
- Street Address: 125 West 31St Street, New York, NY 10001
- Property Type: Condominium
- Elevator Building
- Doorman: Full-time doorman
- Neighborhood: Chelsea / Manhattan
- Building Name: The Epic
- Available Rental Listings: Please Inquire
- Year Built: 2005
- Total Apartments: 458
- Floors: 59
-
Near Subway Lines:
Other Similar Buildings in NYC

The Chelsea Seventh Condominium
215 7 Avenue, New York, NY 10011
Condominium in Chelsea

Chelsea Stratus
101 West 24 Street, New York, NY 10011
Condominium in Chelsea

Beatrice
105 West 29th Street, New York, NY 10001
Condominium in Chelsea

The Residences at 400 Fifth Avenue
400 5 Avenue, New York, NY 10018
Condominium in Murray Hill

Sky House
11 East 29 Street, New York, NY 10016
Condominium in Murray Hill

Twenty9th Park Madison
39 East 29 Street, New York, NY 10016
Condominium in NoMad

325 Fifth Avenue
321 5 Avenue, New York, NY 10016
Condominium in Murray Hill

One Sixty Madison
160 Madison Avenue, New York, NY 10016
Condominium in Midtown
Map Location of The Epic and nearby points of interest
Coming Soon
Alternate Addresses for The Epic in NYC
- 125 WEST 31 STREET
- 127 WEST 31 STREET
- 129 WEST 31 STREET
- 131 WEST 31 STREET
- 124 WEST 32 STREET
- 126 WEST 32 STREET
- 128 WEST 32 STREET
- 130 WEST 32 STREET
- 132 WEST 32 STREET
- 134 WEST 32 STREET
- 136 WEST 32 STREET
You have been subscribed to receive the following updates on The Epic