The Westwind at 175 West 93rd Street Building Details
175 West 93rd Street, also known as The Westwind, is a notable cooperative building located in Manhattan's Upper West Side. Designed by the acclaimed architect Rosario Candela, this pre-war building was completed in 1928 and converted to a co-op in 1984. Candela's work is revered for its elegance and attention to detail, and The Westwind is no exception, featuring a beautifully restored lobby that exemplifies his timeless style.
The building comprises 175 residential units, ranging from one to three-bedroom apartments, many of which retain original pre-war details such as high ceilings, hardwood floors, and decorative moldings. The units are known for their spacious layouts and abundant natural light, making them highly desirable among residents.
The Westwind offers a range of amenities that cater to the needs and lifestyles of its residents. These include a 24-hour doorman, ensuring security and convenience, and a live-in resident manager who oversees the building's operations and maintenance. Additional amenities include a central laundry room, a bike room, and private storage facilities available to residents. The building is also pet-friendly, welcoming both cats and dogs.
The location of 175 West 93rd Street is one of its most attractive features. Situated in the heart of the Upper West Side, the building is surrounded by a variety of cultural, dining, and recreational options. Residents are just a short walk away from Central Park and Riverside Park, providing ample opportunities for outdoor activities. The American Museum of Natural History and the New York Historical Society are also nearby, offering rich cultural experiences.
Transportation options are excellent, with the 1, 2, and 3 subway lines accessible at the 96th Street station, just a few blocks away. The B and C lines are also within walking distance, providing convenient access to other parts of Manhattan and the broader New York City area. This makes commuting and exploring the city easy and efficient for residents.
175 West 93rd Street combines historic charm with modern conveniences, offering a luxurious and comfortable living experience in one of Manhattan's most desirable neighborhoods. The building's rich architectural heritage, comprehensive amenities, and prime location make it an ideal choice for those seeking a sophisticated urban lifestyle.
The building comprises 175 residential units, ranging from one to three-bedroom apartments, many of which retain original pre-war details such as high ceilings, hardwood floors, and decorative moldings. The units are known for their spacious layouts and abundant natural light, making them highly desirable among residents.
The Westwind offers a range of amenities that cater to the needs and lifestyles of its residents. These include a 24-hour doorman, ensuring security and convenience, and a live-in resident manager who oversees the building's operations and maintenance. Additional amenities include a central laundry room, a bike room, and private storage facilities available to residents. The building is also pet-friendly, welcoming both cats and dogs.
The location of 175 West 93rd Street is one of its most attractive features. Situated in the heart of the Upper West Side, the building is surrounded by a variety of cultural, dining, and recreational options. Residents are just a short walk away from Central Park and Riverside Park, providing ample opportunities for outdoor activities. The American Museum of Natural History and the New York Historical Society are also nearby, offering rich cultural experiences.
Transportation options are excellent, with the 1, 2, and 3 subway lines accessible at the 96th Street station, just a few blocks away. The B and C lines are also within walking distance, providing convenient access to other parts of Manhattan and the broader New York City area. This makes commuting and exploring the city easy and efficient for residents.
175 West 93rd Street combines historic charm with modern conveniences, offering a luxurious and comfortable living experience in one of Manhattan's most desirable neighborhoods. The building's rich architectural heritage, comprehensive amenities, and prime location make it an ideal choice for those seeking a sophisticated urban lifestyle.
The Westwind Building Amenities
- Bike room
- Full-time doorman
- New construction
- On-site laundry
- Pets - Cats ok
- Pets - Dogs ok
- Elevator
- Storage
Active Listings & Units
The Westwind Residences
Recent Activity at The Westwind
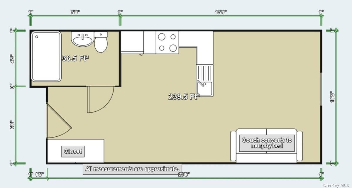
Apartment Floor Plans
Building Facts for 175 West 93rd Street, New York 10025
- Available Sales Listings: 3
- Street Address: 175 West 93rd Street, New York, NY 10025
- Property Type: Cooperative
- Elevator Building
- New Development
- Doorman: Full-time doorman
- Neighborhood: Upper West Side / Manhattan
- Building Name: The Westwind
- Available Rental Listings: Please Inquire
- Year Built: 1929
- Floors: 16
-
Near Subway Lines:
Other Similar Buildings in NYC

The Eldorado
300 Central Park West, New York, NY 10024
Cooperative in Upper West Side

The Ardsley
320 Central Park West, New York, NY 10025
Cooperative in Upper West Side

Columbus Park Tower
100 West 94 Street, New York, NY 10025
Cooperative in Upper West Side

The Belvoir
470 West End Avenue, New York, NY 10024
Cooperative in Upper West Side

200 West 86th Street
530 Amsterdam Avenue, New York, NY 10024
Cooperative in Upper West Side

The Chatillion
214 Riverside Drive, New York, NY 10025
Cooperative in Upper West Side

127 West 96 Street, New York, NY 10025
Cooperative in Upper West Side

300 Riverside Drive
300 Riverside Drive, New York, NY 10025
Cooperative in Upper West Side
Map Location of The Westwind and nearby points of interest
Coming Soon
Alternate Addresses for The Westwind in NYC
- 681 AMSTERDAM AVENUE
- 683 AMSTERDAM AVENUE
- 685 AMSTERDAM AVENUE
- 687 AMSTERDAM AVENUE
- 689 AMSTERDAM AVENUE
- 691 AMSTERDAM AVENUE
- 167 WEST 93 STREET
- 169 WEST 93 STREET
- 171 WEST 93 STREET
- 173 WEST 93 STREET
- 175 WEST 93 STREET
- 177 WEST 93 STREET
- 179 WEST 93 STREET
You have been subscribed to receive the following updates on The Westwind