Listing no longer available

W 31 ST

NEW YORK, NY


Off Market
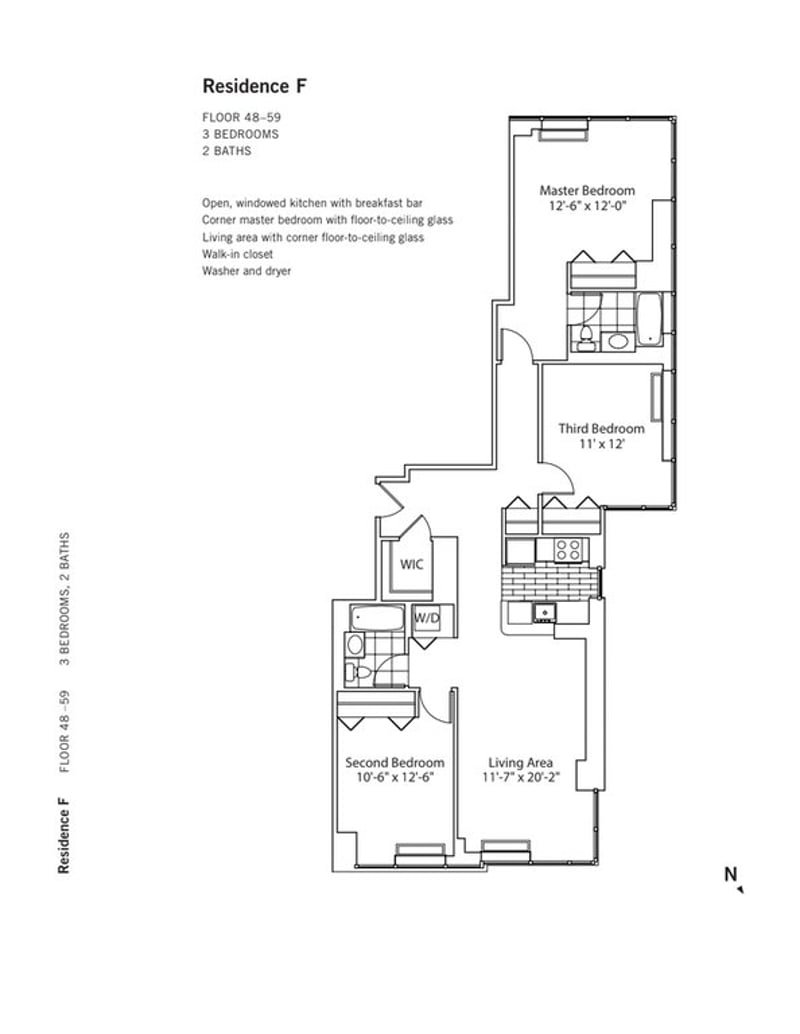
3 Beds | 2 Baths

WASHER DRYER! Virtual Tour!

Spectacular 3 bed room with 2 full bathrooms. Washer/dryer. Giant walk in closet. Windowed kitchen. Unparalleled north, west and southern views!! Must See!

The Epic is the next generation of green NYC luxury rental apartments. The Epic is a Gold LEED-certified apartment building located in iconic Midtown NYC . The top of the building houses 400 luxury rental units with unparalleled views, while the bottom third of the building is shared by the American Cancer Soci…

Application fee: $20 or less per applicant
First Month's Rent
1 Month Security Deposit

Amenities
  • Bicycle Room
  • Common Outdoor Space
  • Common parking/Garage
  • Diplomats OK
  • Full-time doorman
  • Green Building
  • On-site laundry
  • One Month Free
  • Pets - Cats ok
  • Pets - Dogs ok
  • Concierge
  • Dishwasher
  • Elevator
  • Gym/Fitness
  • Hardwood
  • Lounge
  • Microwave
  • Renovated
  • Storage
  • Subway
  • Valet
  • Washer/Dryer
  • Wifi

Nearby Subway Lines:

pin_drop
Chelsea Location
apartment
Rental Building/Apartment Building Type
stairs
49 Floors
door_front
6 Total Rooms
event_available
12-24 months Lease Term

Map
Map of the listing location


Chelsea
About the Neighborhood

Chelsea

Loading neighborhood information...

Read More About Chelsea

Share on WhatsApp