Thumbnail 1 Thumbnail 2
Listing no longer available

W 83 ST

NEW YORK, NY


Off Market
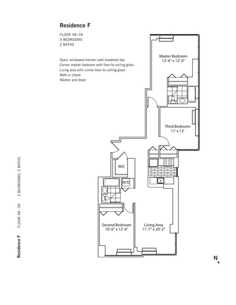
3 Beds | 2 Baths

CONTACT US TODAY FOR AN EXCLUSIVE VIRTUAL TOUR!!! Very spacious 3 bed 2 bath! IN UNIT WASHER DRYER. MASSIVE Walk in closet!

Net Effective Rent advertised. Washer dryer in unit! Virtual tour available.

The Epic is the next generation of green NYC luxury rental apartments. The Epic is a Gold LEED-certified apartment building located in iconic Midtown NYC . The top of the building houses 400 luxury rental units with unparalleled views, while the bottom third of the building is shared by the Amer…

Application fee: $20 or less per applicant
First Month's Rent
1 Month Security Deposit

Amenities
  • Bicycle Room
  • Common Outdoor Space
  • Common parking/Garage
  • Diplomats OK
  • Full-time doorman
  • Green Building
  • On-site laundry
  • Pets - Cats ok
  • Pets - Dogs ok
  • Concierge
  • Dishwasher
  • Elevator
  • Gym/Fitness
  • Hardwood
  • Lounge
  • Microwave
  • Renovated
  • Storage
  • Subway
  • Valet
  • Washer/Dryer
  • Wifi

Nearby Subway Lines:

pin_drop
Chelsea Location
apartment
Rental Building/Apartment Building Type
stairs
53 Floors
door_front
6 Total Rooms
event_available
12-24 months Lease Term

Map
Map of the listing location


Chelsea
About the Neighborhood

Chelsea

Loading neighborhood information...

Read More About Chelsea

Share on WhatsApp