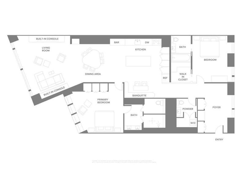
Floorplan ImageView Floorplan

551 West 21st Street #4A

NEW YORK, NY


$4,150,000
2 Beds | 2.5 Baths

The story of 551 West 21st Street #4A is one of rarefied ambition and architectural genius, where visionary design meets the pulse of New Yorks ever-evolving skyline. Located in the vibrant heart of West Chelsea, this exceptional jewel-box pied--terre offers a 2,100 SF+/- residence with an unparalleled living experience, blending classical Brazilian modernism with cutting-edge New York sophistication.

Conceived by Lord Norman Foster's celebrated firm, Foster + Partners, in collaboration …


Amenities
  • Bike room
  • City view
  • Common Outdoor Space
  • Common parking/Garage
  • Full-time doorman
  • New construction
  • On-site laundry
  • Parking Available
  • Pets - Cats ok
  • Pets - Dogs ok
  • Pied a Terre
  • River VIew
  • Concierge
  • Elevator
  • Gym/Fitness
  • Pool
  • Storage
  • Washer/Dryer


Listing in contract Sale Listing ID: #2226183
payments
$4719/month Common Charges
article
$49320/year Taxes
pin_drop
Chelsea Location
apartment
Condominium Building Type
stairs
4 Floors
door_front
5 Total Rooms
square_foot
2113 sq. ft. Interior Space
calendar_month
2013 Year Built
calculate
$30,362/month Est. Monthly Payment
The monthly total payment including maintenance and/or common charges plus taxes is $30,362/month. This assumes 20% down payment and a 30 year rate of 6.75%. Want to know approximate closing costs? Visit our closing cost calculator
RealtyMX RLS Logo Listing by PARALLEL REAL ESTATE NYC
This information is not verified for authenticity or accuracy and is not guaranteed and may not reflect all real estate activity in the market. ©2026 The Real Estate Board of New York, Inc., All rights reserved. This advertisement does not suggest that the broker has a listing in this property or properties or that any property is currently available.

Map
Map of the listing location


Estimated Monthly Payment
Mortgage Amount* N/A

Mortgage Payment N/A

Common Charges $4719.00
Charges condo owners pay to cover building operating costs.

Taxes $4110
The home's NYC property taxes. Amount provided by the seller's agent. May be subject to change.

Estimated Monthly Payment $6,003

*All calculations are estimates provided by Highline for informational purposes only. The Mortgage Amount includes principal and interest. Home insurance is not included. Actual amounts or financing terms may vary. Please contact your mortgage provider for specifics.
Chelsea
About the Neighborhood

Chelsea

Loading neighborhood information...

Read More About Chelsea
Share on WhatsApp
Highline Residential (212) 960-8740