Listing no longer available

Second Avenue #309

NEW YORK, NY


Off Market
2 Beds | 1 Baths

JULY 1 START DATE

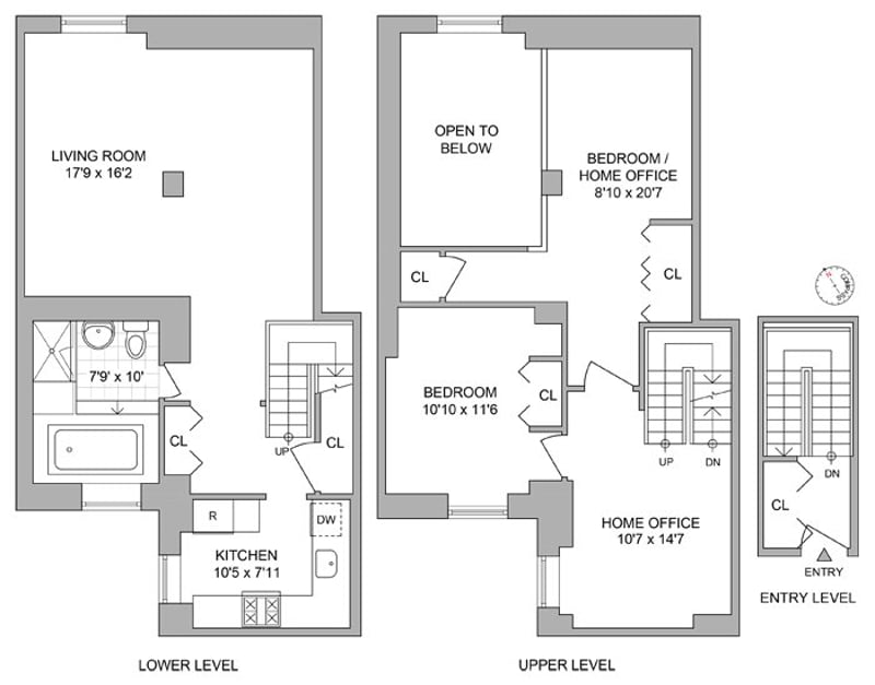
Generously proportioned at 1,300 square feet, this unique home offers endless flexibility with a dedicated space for a home office in addition to 2 bedrooms, one of which is open over the living room. Spacious and unique, this triplex home has soaring ceilings and is situated in an elegant pre-war Historic luxury condo at Rutherford Place. The oversized windowed kitchen offers Poggenpohl cabinetry, Viking range, Sub-zero fridge, Bosch dishwasher and granite counters and backs…


Amenities
  • Bike room
  • Common Outdoor Space
  • Common roof deck
  • Full-time doorman
  • High Ceilings
  • Live-in superintendent
  • On-site laundry
  • Pets - Cats ok
  • Pets - Dogs ok
  • Pied-A-Terre Allowed
  • Concierge
  • Elevator
  • Pre-War
  • Valet

Nearby Subway Lines:

pin_drop
Gramercy Park Location
apartment
Condominium Building Type
door_front
5 Total Rooms
square_foot
1299 sq. ft. Interior Space
event_available
12-12 months Lease Term
RealtyMX RLS Logo Listing by Compass
This information is not verified for authenticity or accuracy and is not guaranteed and may not reflect all real estate activity in the market. ©2026 The Real Estate Board of New York, Inc., All rights reserved. This advertisement does not suggest that the broker has a listing in this property or properties or that any property is currently available.

Map
Map of the listing location


Gramercy Park
About the Neighborhood

Gramercy Park

Loading neighborhood information...

Read More About Gramercy Park

Share on WhatsApp