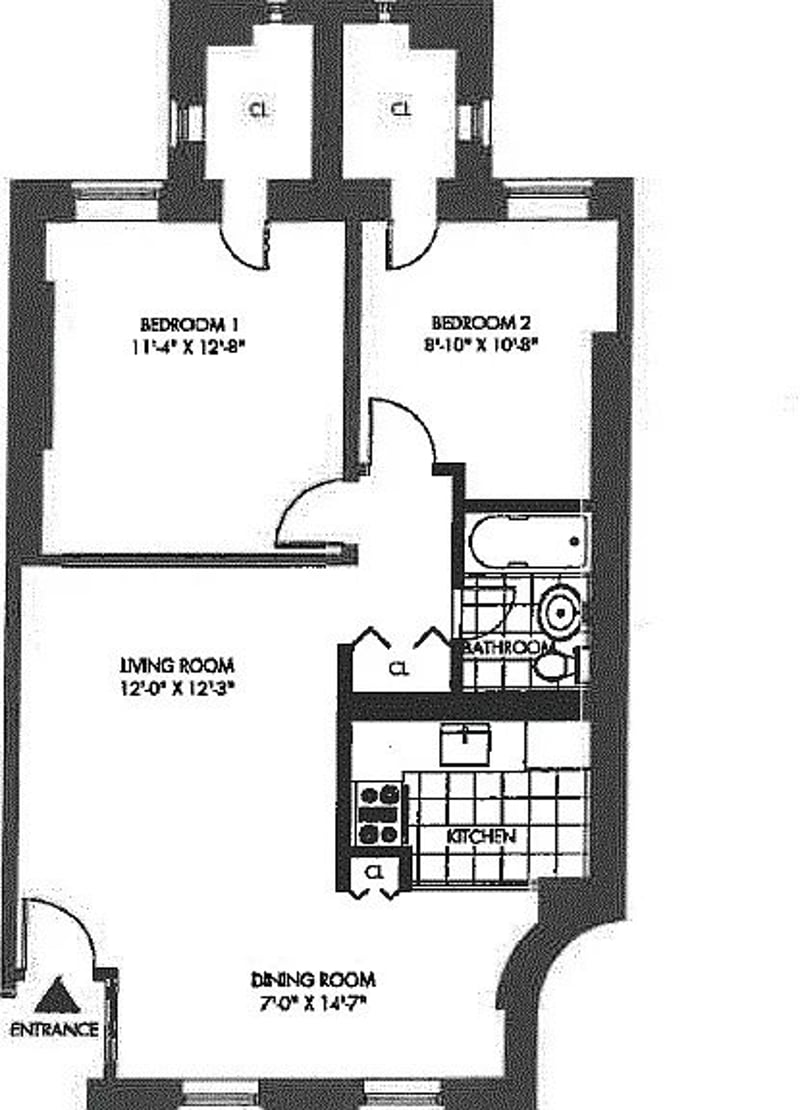
Floorplan ImageView Floorplan
Listing no longer available

140 Warren Street #6C

BROOKLYN, NY


Off Market
2 Beds | 1 Baths

3L'S: LOCATION, LAYOUT AND LIGHT. A Rare two-bedroom Condo is up for grabs at Alfred Tredway White's historic Cobble Hill Towers in the Cobble Hill Historic District. This is a landmarked building.

Top floor Stunning Two Bedroom with an array of natural light. Prime Cobble Hill!! The bathroom is currently being gut renovated and the apt will be freshly painted. There is a W/D in unit along with stainless steel appliances. Direct views of Manhattan from the large terrace.

Abou…


Amenities
  • Bike room
  • City view
  • Common Outdoor Space
  • New construction
  • On-site laundry
  • Pets - Cats ok
  • Pets - Dogs ok
  • Terrace
  • Washer/Dryer


payments
$741/month Common Charges
article
$9900/year Taxes
pin_drop
Cobble Hill Location
apartment
Condominium Building Type
stairs
6 Floors
door_front
4 Total Rooms
square_foot
950 sq. ft. Interior Space
calculate
$6,547/month Est. Monthly Payment
The monthly total payment including maintenance and/or common charges plus taxes is $6,547/month. This assumes 20% down payment and a 30 year rate of 6.75%. Want to know approximate closing costs? Visit our closing cost calculator
RealtyMX RLS Logo Listing by Corcoran Group
This information is not verified for authenticity or accuracy and is not guaranteed and may not reflect all real estate activity in the market. ©2026 The Real Estate Board of New York, Inc., All rights reserved. This advertisement does not suggest that the broker has a listing in this property or properties or that any property is currently available.

Map
Map of the listing location


Estimated Monthly Payment
Mortgage Amount* N/A

Mortgage Payment N/A

Common Charges $741.00
Charges condo owners pay to cover building operating costs.

Taxes $825
The home's NYC property taxes. Amount provided by the seller's agent. May be subject to change.

Estimated Monthly Payment $6,003

*All calculations are estimates provided by Highline for informational purposes only. The Mortgage Amount includes principal and interest. Home insurance is not included. Actual amounts or financing terms may vary. Please contact your mortgage provider for specifics.
Cobble Hill
About the Neighborhood

Cobble Hill

Loading neighborhood information...

Read More About Cobble Hill
Share on WhatsApp
Highline Residential (212) 960-8740