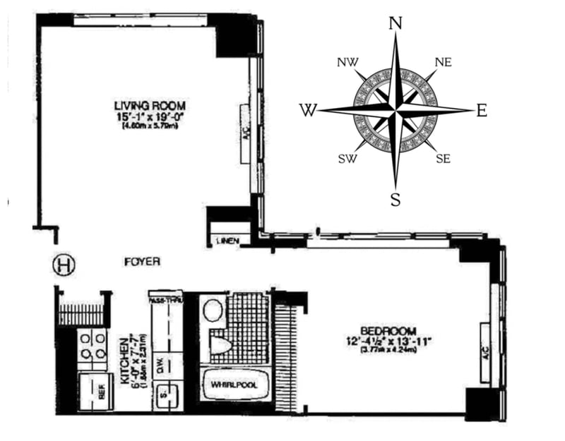
Floorplan ImageView Floorplan
Thumbnail 1 Thumbnail 2 Thumbnail 3 Thumbnail 4 Thumbnail 5 Thumbnail 6

445 Fifth Avenue #27H

NEW YORK, NY


$1,095,000
1 Beds | 1 Baths

Large Corner One Bedroom with Walls of Windows and Stunning City Views! Welcome to Residence 27H at Fifth Avenue Tower a bright and spacious corner one-bedroom, one-bath home in a full-service, 24/7 doorman condominium building located in the heart of Fifth Avenue. Walls of windows with North and East exposures flood the apartment with natural sunlight all day long! This home features an open kitchen with stainless steel appliances, a marble bathroom, beautiful hardwood floors, three generous c…


Amenities
  • Bike room
  • City view
  • Common Outdoor Space
  • Common roof deck
  • Full-time doorman
  • Live-in superintendent
  • No pets
  • On-site laundry
  • Parking Available
  • Pets - Cats ok
  • Pets - Dogs ok
  • Pied a Terre
  • Concierge
  • Elevator
  • Gym/Fitness
  • Pool
  • Pre-War
  • Storage

Nearby Subway Lines:

Available now Sale Listing ID: #2381408
payments
$904/month Common Charges
article
$9600/year Taxes
pin_drop
Midtown South Location
apartment
Condominium Building Type
stairs
27 Floors
door_front
3 Total Rooms
square_foot
650 sq. ft. Interior Space
calculate
$7,386/month Est. Monthly Payment
The monthly total payment including maintenance and/or common charges plus taxes is $7,386/month. This assumes 20% down payment and a 30 year rate of 6.75%. Want to know approximate closing costs? Visit our closing cost calculator
RealtyMX RLS Logo Listing by Nest Seekers LLC
This information is not verified for authenticity or accuracy and is not guaranteed and may not reflect all real estate activity in the market. ©2026 The Real Estate Board of New York, Inc., All rights reserved. This advertisement does not suggest that the broker has a listing in this property or properties or that any property is currently available.

Map
Map of the listing location


Estimated Monthly Payment
Mortgage Amount* N/A

Mortgage Payment N/A

Common Charges $904.00
Charges condo owners pay to cover building operating costs.

Taxes $800
The home's NYC property taxes. Amount provided by the seller's agent. May be subject to change.

Estimated Monthly Payment $6,003

*All calculations are estimates provided by Highline for informational purposes only. The Mortgage Amount includes principal and interest. Home insurance is not included. Actual amounts or financing terms may vary. Please contact your mortgage provider for specifics.
Midtown South
About the Neighborhood

Midtown South

Loading neighborhood information...

Read More About Midtown South
Share on WhatsApp
Highline Residential (212) 960-8740