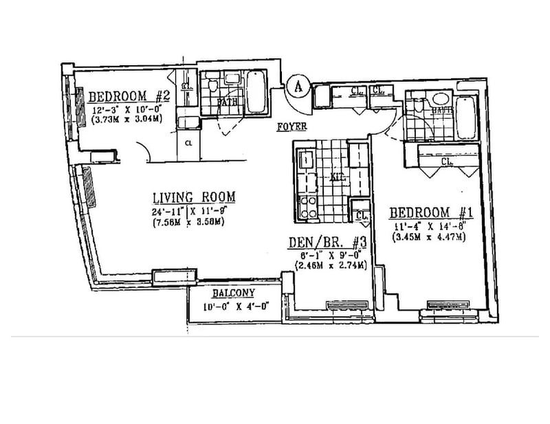
Floorplan ImageView Floorplan

4-74 48th Avenue #27A

LONG ISLAND CITY, NY


$925,000
2 Beds | 2 Baths

Welcome to this stunning A-line residence on the 27th floor, located in the highly sought-after Hunters Point section of Long Island City, Queens, NY. This two-bedroom, two-bathroom home offers the flexibility to easily convert into a three-bedroom, providing exceptional space and versatility to suit your needs.

Step inside to soaring ceilings that enhance the sense of openness, while near floor-to-ceiling windows flood the home with natural light and frame panoramic views of Brooklyn, Queens,…


Amenities
  • City view
  • Common parking/Garage
  • Full-time doorman
  • On-site laundry
  • Pets - Cats ok
  • Pets - Dogs ok
  • Private balcony
  • River VIew
  • Elevator
  • Gym/Fitness

Nearby Subway Lines:

Available now Sale Listing ID: #2430251
payments
$3860/month Common Charges
pin_drop
Long Island City Location
apartment
Condop Building Type
door_front
5 Total Rooms
square_foot
1050 sq. ft. Interior Space
calculate
$8,660/month Est. Monthly Payment
The monthly total payment including maintenance and/or common charges plus taxes is $8,660/month. This assumes 20% down payment and a 30 year rate of 6.75%. Want to know approximate closing costs? Visit our closing cost calculator
RealtyMX RLS Logo Listing by Compass
This information is not verified for authenticity or accuracy and is not guaranteed and may not reflect all real estate activity in the market. ©2025 The Real Estate Board of New York, Inc., All rights reserved. This advertisement does not suggest that the broker has a listing in this property or properties or that any property is currently available.

Map
Map of the listing location


Estimated Monthly Payment
Mortgage Amount* N/A

Mortgage Payment N/A

Common Charges $3860.00
Charges condo owners pay to cover building operating costs.

Taxes
The home's NYC property taxes. Amount provided by the seller's agent. May be subject to change.

Estimated Monthly Payment $6,003

*All calculations are estimates provided by Highline for informational purposes only. The Mortgage Amount includes principal and interest. Home insurance is not included. Actual amounts or financing terms may vary. Please contact your mortgage provider for specifics.
Long Island City
About the Neighborhood

Long Island City

Loading neighborhood information...

Read More About Long Island City
Share on WhatsApp
Highline Residential (212) 960-8740