Listing no longer available

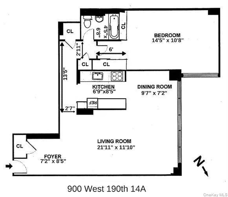
900 190 Street #14A

NEW YORK, NY


Off Market
1 Beds | 1 Baths

Convertible 2-Bedroom with Breathtaking Hudson River Views in Full-Service Co-op

Welcome to Apt 14A at 900 W 190th Street-a spacious, light-filled high-floor home offering uninterrupted panoramic views of the Hudson River, Palisades, and Tappan Zee Bridge. This oversized one-bedroom, one-bath apartment is easily convertible to a two-bedroom, making it the perfect blend of flexibility, comfort, and value in the heart of Hudson Heights.

From every room, enjoy the beauty of all four seasons thro…


Amenities
  • Bike room
  • Full-time doorman
  • New construction
  • On-site laundry
  • Parking Available
  • Pets - Cats ok
  • Pets - Dogs ok
  • Private parking
  • Water view
  • Concierge
  • Dishwasher
  • Elevator
  • Hardwood
  • Microwave
  • Storage

Nearby Subway Lines:

pin_drop
Washington Heights Location
apartment
Cooperative Building Type
door_front
4 Total Rooms
square_foot
800 sq. ft. Interior Space
bathroom
1 Full Bathrooms
calculate
$2,796/month Est. Monthly Payment
The monthly total payment including maintenance and/or common charges plus taxes is $2,796/month. This assumes 20% down payment and a 30 year rate of 6.75%. Want to know approximate closing costs? Visit our closing cost calculator
OneKey Logo Listing courtesy of Winzone Realty Inc
The source of the displayed data is either the property owner or public record provided by non-governmental third parties. It is believed to be reliable but not guaranteed. This information is provided exclusively for consumers' personal, non-commercial use.
The data relating to real estate for sale on this website comes in part from the IDX Program of OneKey™ MLS.
Information Copyright 2020, OneKey™ MLS. All Rights Reserved. This advertisement does not suggest that the broker has a listing in this property or properties or that any property is currently available.

Map
Map of the listing location


Estimated Monthly Payment
Mortgage Amount* N/A

Mortgage Payment N/A

Common Charges
Charges condo owners pay to cover building operating costs.

Taxes
The home's NYC property taxes. Amount provided by the seller's agent. May be subject to change.

Estimated Monthly Payment $6,003

*All calculations are estimates provided by Highline for informational purposes only. The Mortgage Amount includes principal and interest. Home insurance is not included. Actual amounts or financing terms may vary. Please contact your mortgage provider for specifics.
Washington Heights
About the Neighborhood

Washington Heights

Loading neighborhood information...

Read More About Washington Heights
Share on WhatsApp