Floorplan ImageView Floorplan
Listing no longer available

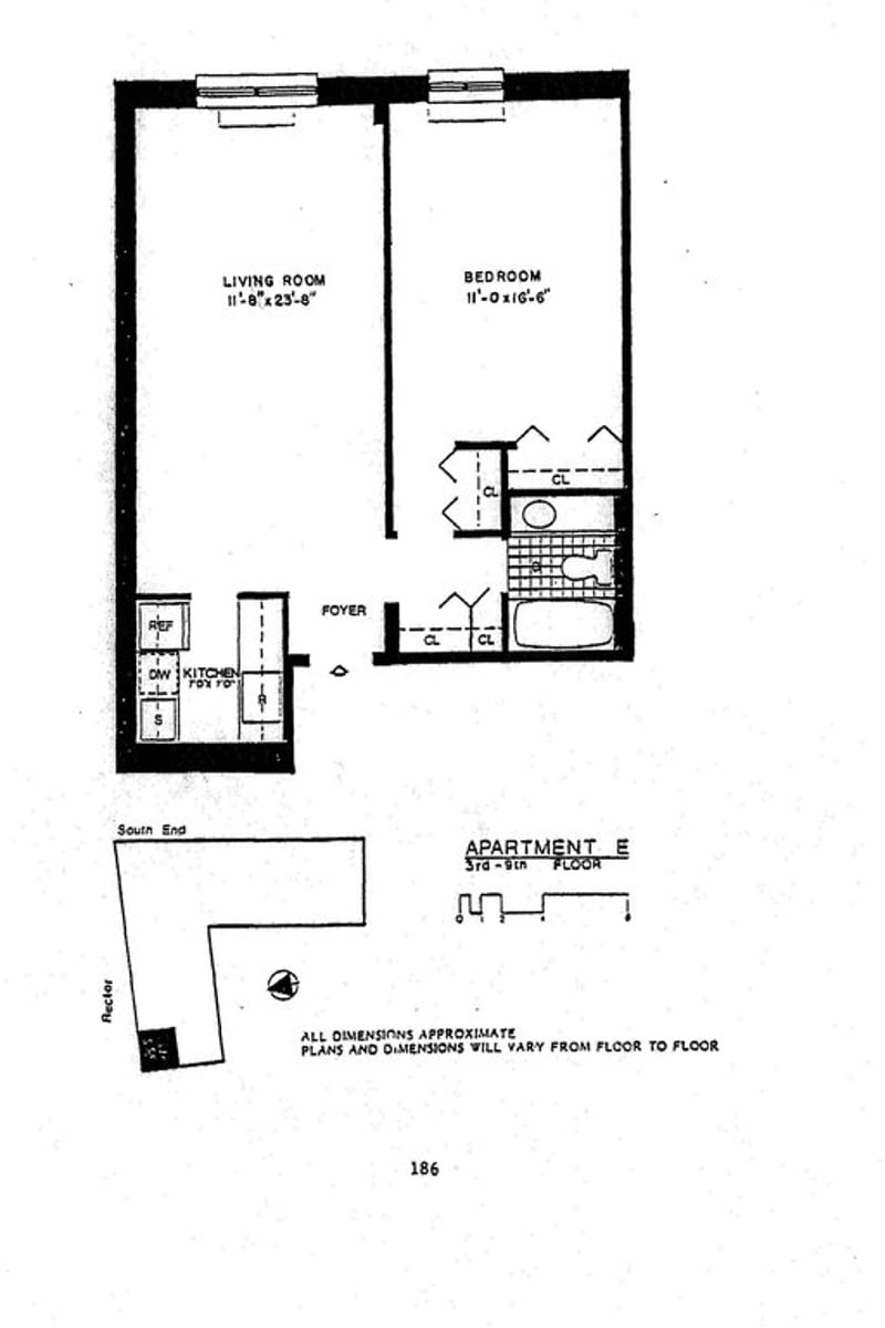
300 Rector Place #6E

NEW YORK, NY


Off Market
1 Beds | 1 Baths

Renovated 300 Rector Place, Unit 6E - All showings require advance appointment with the listing agent. Occupied.

Step into this thoughtfully renovated one-bedroom condominium located on the sixth floor of a full-service building in the heart of Battery Park City. Offering approximately 665+/- square feet of bright, functional living space, Unit 6E combines comfort, style, and convenience.

- Oversized windows frame lush treetop views of Rector Park, the iconic WTC skyline, and a partial glimps…


Amenities
  • Bicycle Room
  • Bike room
  • Children Playroom
  • City view
  • Common Outdoor Space
  • Common parking/Garage
  • Common roof deck
  • Full-time doorman
  • Lounge room
  • New construction
  • No pets
  • On-site laundry
  • Parking Available
  • Pets - Cats ok
  • Pets - Dogs ok
  • Pied a Terre
  • Pied-A-Terre Allowed
  • Concierge
  • Dishwasher
  • Elevator
  • Gym/Fitness
  • Lounge
  • Playroom
  • Pre-War
  • Storage

Nearby Subway Lines:

payments
$1288/month Common Charges
article
$15084/year Taxes
pin_drop
Battery Park City Location
apartment
Condominium Building Type
door_front
3 Total Rooms
square_foot
665 sq. ft. Interior Space
calculate
$5,840/month Est. Monthly Payment
The monthly total payment including maintenance and/or common charges plus taxes is $5,840/month. This assumes 20% down payment and a 30 year rate of 6.75%. Want to know approximate closing costs? Visit our closing cost calculator
RealtyMX RLS Logo Listing by Sothebys International Realty
This information is not verified for authenticity or accuracy and is not guaranteed and may not reflect all real estate activity in the market. ©2026 The Real Estate Board of New York, Inc., All rights reserved. This advertisement does not suggest that the broker has a listing in this property or properties or that any property is currently available.

Map
Map of the listing location


Estimated Monthly Payment
Mortgage Amount* N/A

Mortgage Payment N/A

Common Charges $1288.00
Charges condo owners pay to cover building operating costs.

Taxes $1257
The home's NYC property taxes. Amount provided by the seller's agent. May be subject to change.

Estimated Monthly Payment $6,003

*All calculations are estimates provided by Highline for informational purposes only. The Mortgage Amount includes principal and interest. Home insurance is not included. Actual amounts or financing terms may vary. Please contact your mortgage provider for specifics.
Battery Park City
About the Neighborhood

Battery Park City

Loading neighborhood information...

Read More About Battery Park City
Share on WhatsApp