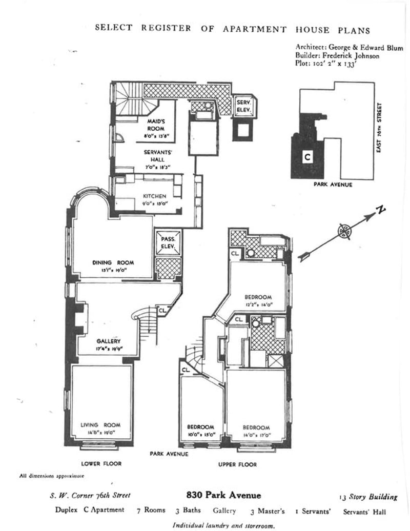
Floorplan ImageView Floorplan

830 Park Avenue #5/6C

NEW YORK, NY


$4,285,000
4 Beds | 3 Baths

Perfectly situated on Park Avenue and East 76th Street, this crisp, classic and mostly original 9 into 8 room Duplex cooperative apartment is available for the first time in decades. The sprawling apartment offers an impressive suite of entertaining rooms, a large eat in Kitchen, as well as the flexibility of four Bedrooms.

Distinguished by large windows, multiple corner exposures and a unique garden facing semi-circular bay window; the apartment is an absolute delight. A gracious Reception Ro…


Amenities
  • Full-time doorman
  • On-site laundry
  • Pets - Cats ok
  • Pets - Dogs ok
  • Dishwasher
  • Elevator
  • Fireplace
  • Pre-War
  • Washer/Dryer

Nearby Subway Lines:

Available now Sale Listing ID: #2536349
payments
$8277/month Maintenance Charges
pin_drop
Upper East Side Location
apartment
Cooperative Building Type
door_front
8 Total Rooms
calculate
$30,511/month Est. Monthly Payment
The monthly total payment including maintenance and/or common charges plus taxes is $30,511/month. This assumes 20% down payment and a 30 year rate of 6.75%. Want to know approximate closing costs? Visit our closing cost calculator
RealtyMX RLS Logo Listing by Sothebys International Realty
This information is not verified for authenticity or accuracy and is not guaranteed and may not reflect all real estate activity in the market. ©2025 The Real Estate Board of New York, Inc., All rights reserved. This advertisement does not suggest that the broker has a listing in this property or properties or that any property is currently available.

Map
Map of the listing location


Estimated Monthly Payment
Mortgage Amount* N/A

Mortgage Payment N/A

Common Charges $8277.00
Charges condo owners pay to cover building operating costs.

Taxes
The home's NYC property taxes. Amount provided by the seller's agent. May be subject to change.

Estimated Monthly Payment $6,003

*All calculations are estimates provided by Highline for informational purposes only. The Mortgage Amount includes principal and interest. Home insurance is not included. Actual amounts or financing terms may vary. Please contact your mortgage provider for specifics.
Upper East Side
About the Neighborhood

Upper East Side

Loading neighborhood information...

Read More About Upper East Side
Share on WhatsApp
Highline Residential (212) 960-8740