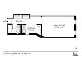
Floorplan ImageView Floorplan
Thumbnail 1 Thumbnail 2 Thumbnail 3 Thumbnail 4 Thumbnail 5 Thumbnail 6

311 East 25th Street #1G

NEW YORK, NY


$315,000
0 Beds | 1 Baths

Rare Gramercy/Kips Bay Studio with Separated Windowed Kitchen, Junior 1BR-Style Layout & Stable Rental Income (With Flexible Tenant Move-Out).

Turnkey, large studio with a separated, windowed kitchen and quiet south-facing tree views on a prime Gramercy/Kips Bay block. The apartment features a long entry foyer with multiple closets, which leads in to a generously sized living area that functions more like a junior one-bedroom, easily accommodating designated sleeping, living/dining…


Amenities
  • No pets
  • On-site laundry
  • Pied a Terre
  • Elevator


Available now Sale Listing ID: #2596217
payments
$1507/month Maintenance Charges
pin_drop
Kips Bay Location
apartment
Cooperative Building Type
stairs
1 Floors
door_front
2 Total Rooms
calculate
$3,141/month Est. Monthly Payment
The monthly total payment including maintenance and/or common charges plus taxes is $3,141/month. This assumes 20% down payment and a 30 year rate of 6.75%. Want to know approximate closing costs? Visit our closing cost calculator
RealtyMX RLS Logo Listing by Brown Harris Stevens Residential Sales LLC
This information is not verified for authenticity or accuracy and is not guaranteed and may not reflect all real estate activity in the market. ©2026 The Real Estate Board of New York, Inc., All rights reserved. This advertisement does not suggest that the broker has a listing in this property or properties or that any property is currently available.

Map
Map of the listing location


Estimated Monthly Payment
Mortgage Amount* N/A

Mortgage Payment N/A

Common Charges $1507.00
Charges condo owners pay to cover building operating costs.

Taxes
The home's NYC property taxes. Amount provided by the seller's agent. May be subject to change.

Estimated Monthly Payment $6,003

*All calculations are estimates provided by Highline for informational purposes only. The Mortgage Amount includes principal and interest. Home insurance is not included. Actual amounts or financing terms may vary. Please contact your mortgage provider for specifics.
Kips Bay
About the Neighborhood

Kips Bay

Loading neighborhood information...

Read More About Kips Bay
Share on WhatsApp