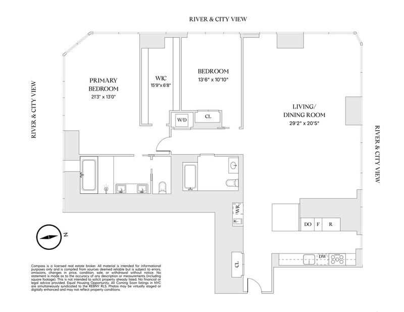
Floorplan ImageView Floorplan

45 East 22nd Street #36A

NEW YORK, NY


$5,995,000
2 Beds | 2 Baths

XXX Mint Luxury High Floor 2053 square foot 2 bedroom home designed by IMG Interiors now available for sale. Enjoy spectacular city and water views, high ceilings and floor to ceiling windows in this stunning condominium residence at 45 East 22nd Street- Madison Park Tower. This home can also be purchased furnished.

This homes approximately 30 x 21 foot oversized living room is phenomenal for entertaining, dining and flexible living space featuring solid oak hardwood floors, electric shades, a…


Amenities
  • Common Outdoor Space
  • Common parking/Garage
  • Common roof deck
  • Common terrace
  • Full-time doorman
  • High Ceilings
  • Live In Super
  • Live-in superintendent
  • Lounge room
  • New construction
  • No pets
  • Package Room
  • Parking Available
  • Pets - Cats ok
  • Pets - Dogs ok
  • Private outdoor space
  • Receiving Room
  • Concierge
  • Dishwasher
  • Elevator
  • Fireplace
  • Gym/Fitness
  • Library
  • Playroom
  • Storage
  • Washer/Dryer

Nearby Subway Lines:

Available now Sale Listing ID: #2601342
payments
$3026/month Common Charges
article
$54480/year Taxes
pin_drop
Flatiron Location
apartment
Condominium Building Type
door_front
4 Total Rooms
square_foot
2053 sq. ft. Interior Space
calendar_month
2016 Year Built
calculate
$38,673/month Est. Monthly Payment
The monthly total payment including maintenance and/or common charges plus taxes is $38,673/month. This assumes 20% down payment and a 30 year rate of 6.75%. Want to know approximate closing costs? Visit our closing cost calculator
RealtyMX RLS Logo Listing by Compass
This information is not verified for authenticity or accuracy and is not guaranteed and may not reflect all real estate activity in the market. ©2026 The Real Estate Board of New York, Inc., All rights reserved. This advertisement does not suggest that the broker has a listing in this property or properties or that any property is currently available.

Map
Map of the listing location


Estimated Monthly Payment
Mortgage Amount* N/A

Mortgage Payment N/A

Common Charges $3026.00
Charges condo owners pay to cover building operating costs.

Taxes $4540
The home's NYC property taxes. Amount provided by the seller's agent. May be subject to change.

Estimated Monthly Payment $6,003

*All calculations are estimates provided by Highline for informational purposes only. The Mortgage Amount includes principal and interest. Home insurance is not included. Actual amounts or financing terms may vary. Please contact your mortgage provider for specifics.
Flatiron
About the Neighborhood

Flatiron

Loading neighborhood information...

Read More About Flatiron
Open Houses
calendar_month
Sun, March 1 • 1:00PM - 3:00PM

Share on WhatsApp