Listing no longer available
E 84 ST
NEW YORK, NY
Off Market
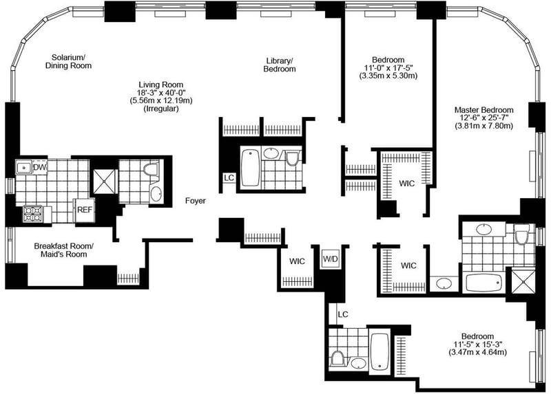
4
Beds
|
4
Baths
The Strathmore is one of Manhattan's true showcase addresses for Upper East Side apartments. From the moment you enter the graciously appointed lobby you will experience a sophisticated metropolitan lifestyle that rivals the most expensive Upper East Side apartments. The majestic forty-eight story Strathmore is the very essence of glamorous NYC apartment living. With only three apartments per floor on some levels, The Strathmore offers four-bedroom apartments with triple exposures allowing for …
Application fee: $20 or less per applicantFirst Month's Rent
1 Month Security Deposit
Amenities
- Bicycle Room
- Children Playroom
- Common parking/Garage
- Diplomats OK
- Full-time doorman
- On-site laundry
- Pets - Cats ok
- Pets - Dogs ok
- Concierge
- Elevator
- Gym/Fitness
- Lounge
- Nursery
- Pool
- Storage
- Subway
- Valet
Nearby Subway Lines:
pin_drop
Upper East Side
Location
apartment
Rental Building/Apartment
Building Type
square_foot
2500 sq. ft.
Interior Space
Map
About the Neighborhood
Upper East Side
Loading neighborhood information...
Read More About Upper East Side
Similar Listings near Upper East Side