Listing no longer available
E 62 ST
NEW YORK, NY
Off Market
0
Beds
|
1
Baths
Details about this listing can be obtained from your professional real estate agent. Please inquire for more information.
Application fee: $20 or less per applicantFirst Month's Rent
1 Month Security Deposit
Amenities
- Full-time doorman
- High Ceilings
- On-site laundry
- Pied a Terre
- Private balcony
- Dishwasher
- Elevator
- Loft
Nearby Subway Lines:
pin_drop
Upper East Side
Location
apartment
Rental Building/Apartment
Building Type
door_front
2
Total Rooms
square_foot
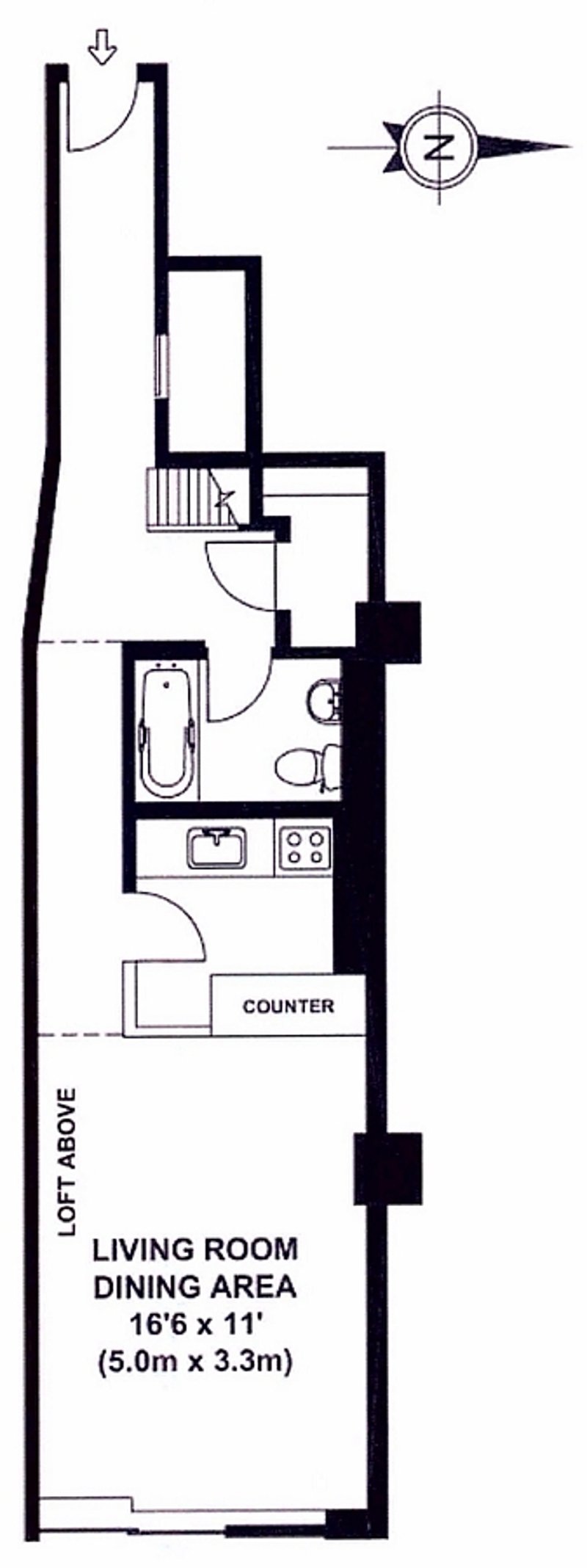
600 sq. ft.
Interior Space
event_available
Max 12 months
Lease Term
Map
About the Neighborhood
Upper East Side
Loading neighborhood information...
Read More About Upper East Side
Similar Listings near Upper East Side
Least expensive of 2026! Yorkville / E 85 ST Studio w/Dishwasher Nr M86, Q/4/5/6 & NO Broker's Fees!
$2,695
Studio | 1 bath
1st Avenue
$2,700
Studio | 1 bath
Tudor City Place
$2,730
Studio | 1 bath
East End Avenue
$2,700
Studio | 1 bath
East 81st Street
$2,950
1 bed | 1 bath
Third Avenue
$2,600
Studio | 1 bath