Listing no longer available

E 30 ST

NEW YORK, NY


Off Market
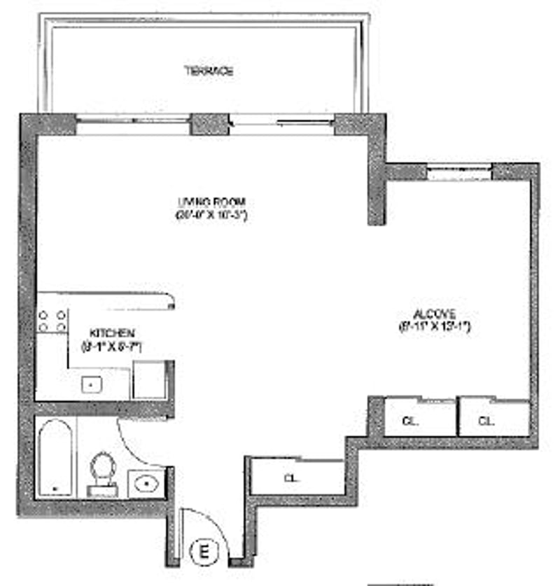
3 Beds | 1 Baths

Details about this listing can be obtained from your professional real estate agent. Please inquire for more information.

Application fee: $20 or less per applicant
First Month's Rent
1 Month Security Deposit

Amenities
  • Common Outdoor Space
  • Diplomats OK
  • Full-time doorman
  • Live In Super
  • On-site laundry
  • Pets - Cats ok
  • Pets - Dogs ok
  • Private balcony
  • Shares Ok
  • Virtual Doorman
  • Elevator
  • Storage
  • Subway
  • Terrace


pin_drop
Kips Bay Location
apartment
Rental Building/Apartment Building Type
stairs
13 Floors
door_front
5 Total Rooms
event_available
Min 12 months Lease Term

Map
Map of the listing location


Kips Bay
About the Neighborhood

Kips Bay

Loading neighborhood information...

Read More About Kips Bay

Share on WhatsApp